Saltar al contenido
Seguínos en las Redes
Facebook page opens in new window
Instagram page opens in new window
YouTube page opens in new window
Estudio Livingston
Estudio de Arquitectura, Diseño, Ampliacion, Reformas, Proyecto de casas nueva
Nuestros Proyectos
Agendá Tu Entrevista Online
Galería de Ideas
Log in/out – Mi cuenta
Novedades
Contacto
0
Ver Carrito
Finalizar compra
No hay productos en el Carrito.
Subtotal:
$
0
Ver Carrito
Finalizar compra
Nuestros Proyectos
Agendá Tu Entrevista Online
Galería de Ideas
Log in/out – Mi cuenta
Novedades
Contacto
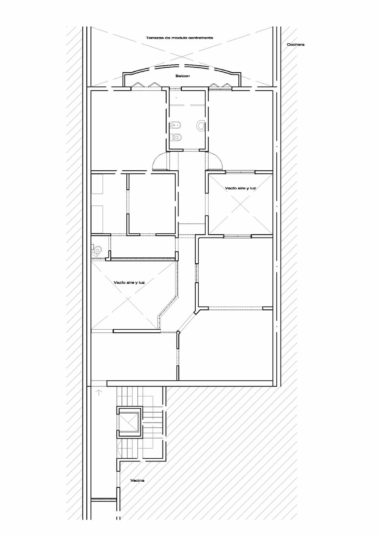
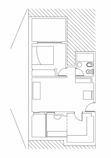
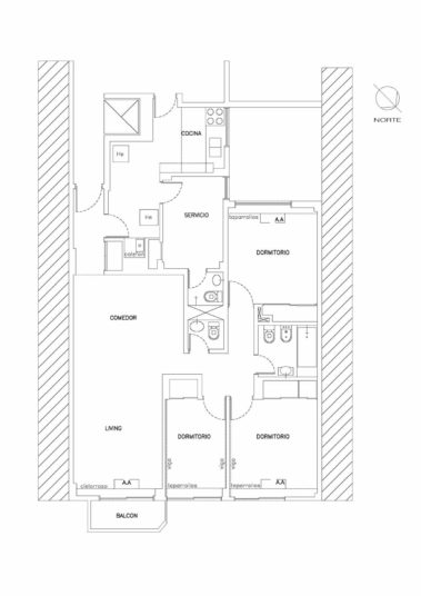
REFORMAS
DEPARTAMENTOS
Reformas
Ir a Tienda